大和ハウスの最新セミオーダー&規格住宅 トップ建築士が設計した300以上の「人気間取り」を追加!

目次
TOPICS
① 直近2年の人気間取りから厳選した370プランを追加し、選べる間取りが計675プランに
② ハウジングマイスターという大和ハウスの建築士とは!?
③ 「こうすればよかった」を減らすための3D VR
<<TOPICS詳細>>
① 直近2年の人気間取りから厳選した370プランを追加し、選べる間取りが計675プランに
社会状況や住み方・働き方のスタイルの変化から、住宅購入希望者の意識はここ2~3年で大きく変化しました。コストパフォーマンス、タイムパフォーマンスを重視する人、SNSなどで積極的に情報を取って賢く合理的に住宅を購入したいと考える人が増加しているようです。
そこで、大和ハウスでは昨年10月から大和ハウスのスマートデザイン(セミオーダー住宅)&大和ハウスのスマートセレクション(規格住宅)の提供を開始しました。セミオーダー住宅・規格住宅は、あらかじめ用意された間取りや外装・内装・住宅設備などのパッケージから好きなものをチョイスしていく建て方。
時間やコストを大幅に節約できることはもちろん、大和ハウスがこれまで培ってきた「いい家づくりのノウハウ」をパッケージ化した住まいを選ぶことは合理的な買い方だと言えます。住宅購入が初めての人でも、大和ハウスの建築士の英知が詰まった暮らしやすい間取りや、美しくコーディネートされた内装、使い勝手の良い住宅設備を選択可能。後悔のない家づくりをサポートします。
変化するお客さまニーズに応えるため、ハウスメーカーはどのような解決策を提示するべきか。大和ハウスの建築士はその答えを探るべく、自社が過去に手掛けた間取りのビッグデータを紐解きました。具体的には、創業以来蓄積してきた何万件ものデータベースの中から、直近2年間に限定し、住みやすく人気の高かった間取り、お客さまの評価が高かった間取りを抽出しました。
次に、面積や玄関方位などの条件を整理し、お客様から希望の多い玄関収納、家事動線、大開口、充実した収納、テレワークスペースなどの要素をリスト化して、それらが複数該当する間取りをピックアップしていきました。中には、ペット対応仕様やビルトインガレージなどを採用した間取りも含まれています。そして最後に、当社トップ建築士が間取りを一つひとつ詳細に吟味して、使い勝手やコストやデザイン性などの観点から調整を加えました。
本日から370の間取りを追加し、合計675の厳選した間取りから選んでいただくことができるようになりました。選択肢が増えることで、より自分好みの間取りをチョイスしていただけるようになります。
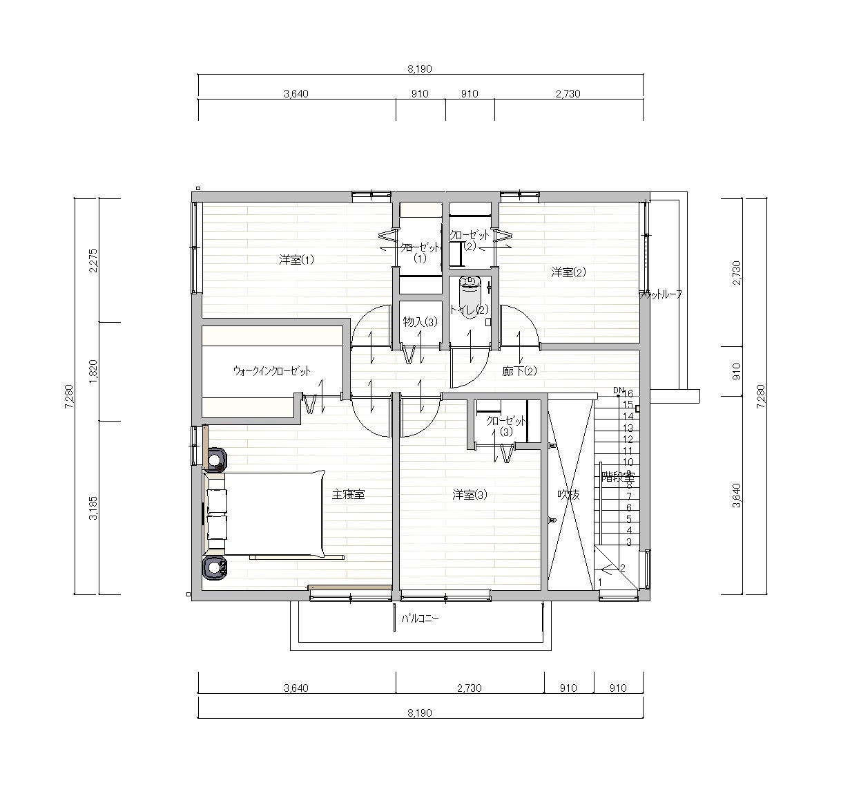
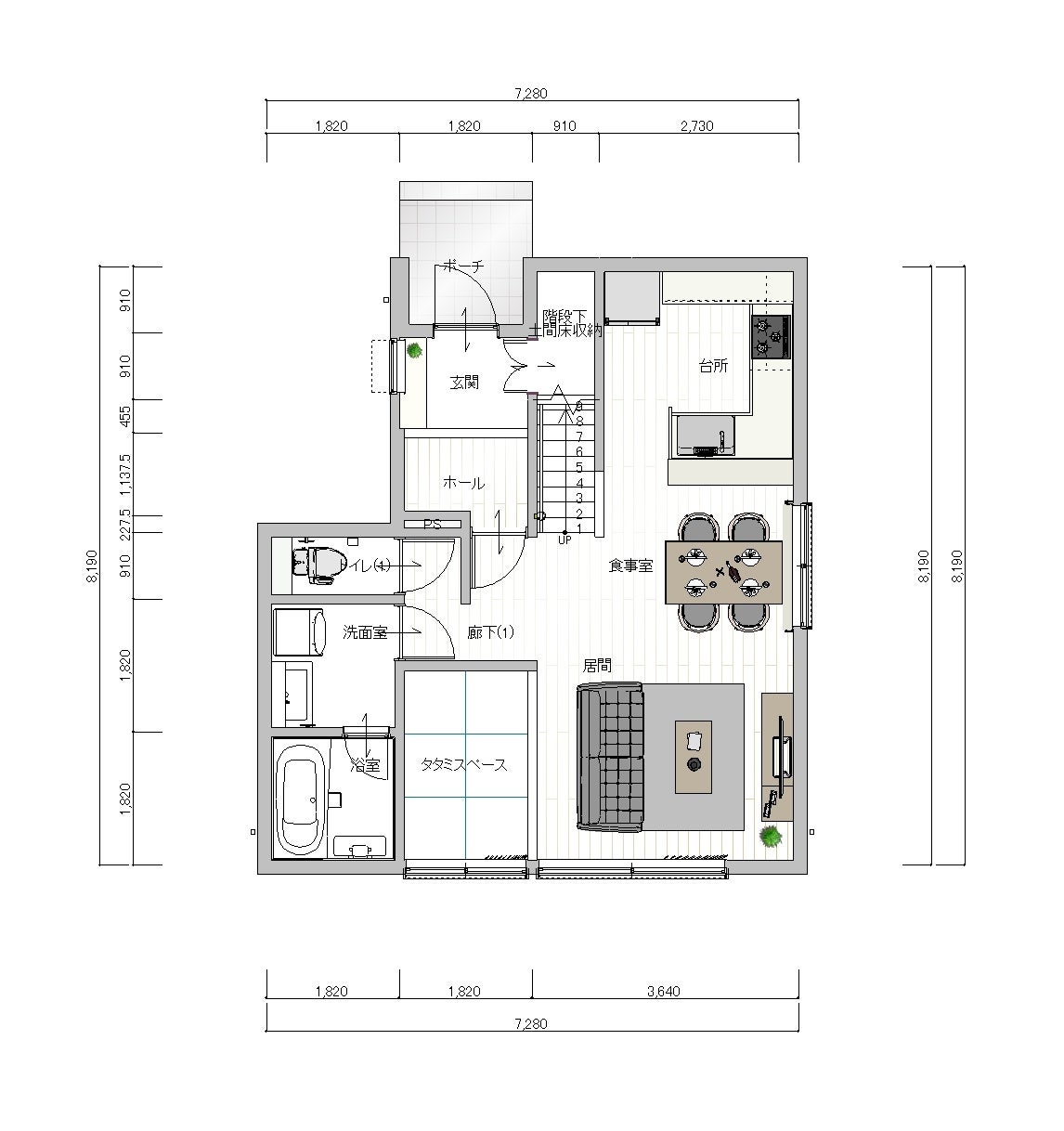
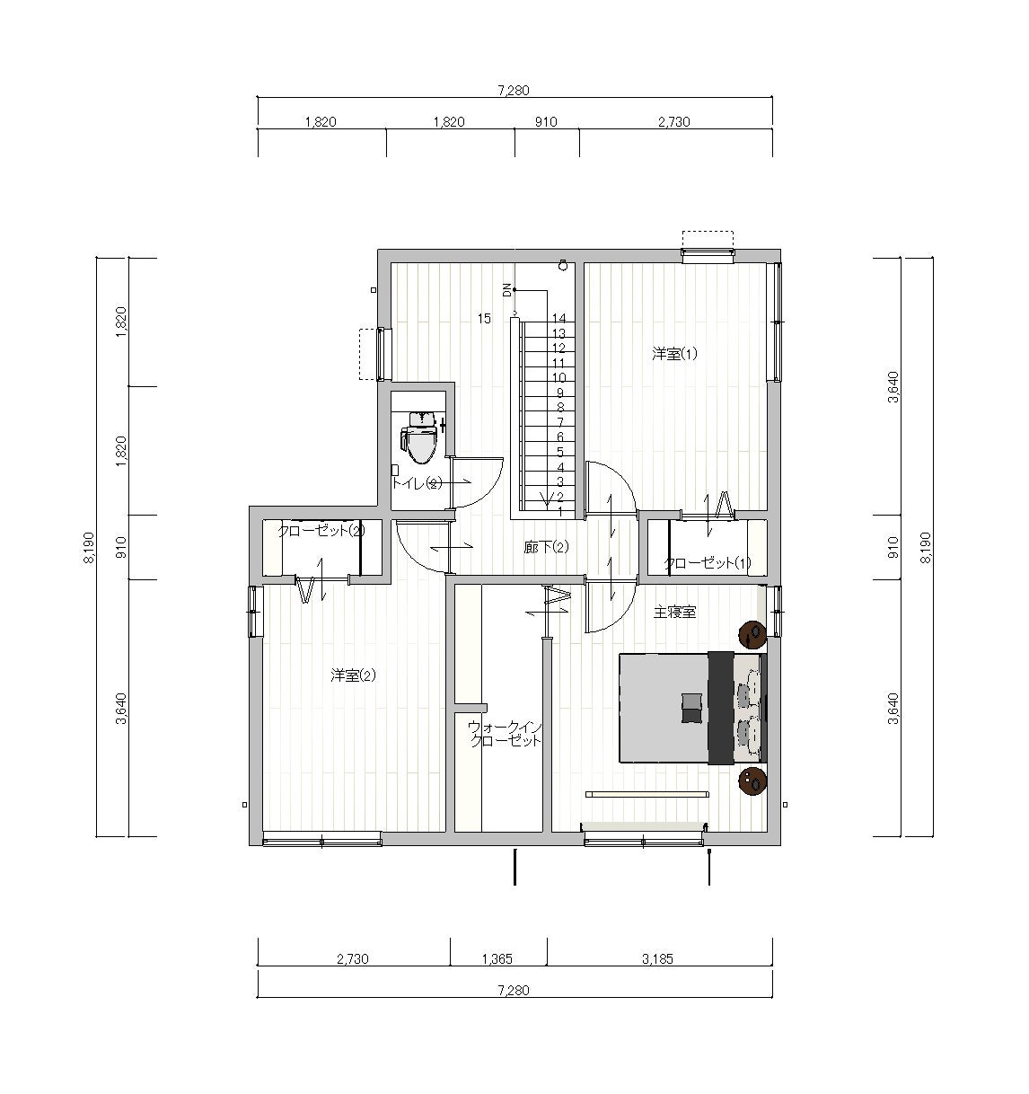
大和ハウスのスマートデザイン&大和ハウスのスマートセレクション 間取り例








大和ハウスのスマートデザイン&大和ハウスのスマートセレクション(木造住宅)の外観例



② ハウジングマイスターという大和ハウスの建築士とは!?
大和ハウス工業は創業から今日まで60年以上にわたって多数の注文住宅や戸建て住宅を建築し続けており、累計65万戸にも上ります。現在は全国の支店・営業所に約500人の建築士が所属し、さまざまなお客さまの要望をかなえる注文住宅を、昨年は年間約4000戸以上建築しています。今回のプロジェクトのベースになったのは、500人の建築士が心血を注いで練り上げた直近2年間の5,000の間取りです。
また、プロジェクトに携わった建築士たちは、500人の中でも最上位に位置づけられる厳しい認定基準に基づき選出された「ハウジングマイスター(社内資格)」です。コンパクトな分譲住宅からラグジュアリーな大邸宅まで幾多の設計経験をもち、グッドデザイン賞を始め数々の受賞歴を誇ります。
いわば住宅設計のプロ中のプロの手によって、自社の集合知の結晶ともいえる675の間取りラインナップが完成したのです。古今東西の大和ハウスの建築士が英知を結集し、そこに当社トップ建築士が技のエッセンスを注入した間取りを比較検討して選ぶことは、500人の優秀な建築士に設計コンペをさせるようなものと言っても過言ではないでしょう。
~間取りを担当した大和ハウスのトップ建築士~

藤井 俊正〈主に軽量鉄骨住宅の間取りを担当〉
大和ハウス工業株式会社 東京本社住宅事業本部設計推進部設計室デザイングループ グループ長。
EDDI’s HOUSE(2003年グッドデザイン賞受賞)などの商品開発を手掛けるほか、住宅展示場の設計、顧客ニーズに応えるハイスペックな住宅の設計にも従事。

野口 豊樹〈主に木造住宅の間取りを担当〉
大和ハウス工業株式会社 本社住宅事業本部住宅商品開発部戦略室商品企画グループ。
木造住宅のプラットフォーム商品であるxevoBeWood開発、2018年ウッドデザイン賞、2008年・2017年にはデザイナーとしてグッドデザイン賞受賞。
③「こうすればよかった」を減らすための3D VR
自由に間取りや仕様を選べても、それが自分にとって納得のいく選択でなかったり、住んでから後悔する点が見つかったりするようでは元も子もありません。そこで、今回用意されたすべての間取りに対して、3DVRのデータが準備され、立体的なパースを動かしながら部屋の広さや配置、収納量などを確認できる仕組みをつくりました。
その場で何度でも、納得がいくまで空間シミュレーションを行い、すぐに選び直せるので、建ててから「イメージと違う」「失敗した!」と後悔することが大幅に減ると考えられます。3D VRの実力は、大和ハウスの住宅展示場で実際に確かめてみることができます。
3D VRで窓の大きさを変更


明快な価格と仕様だけじゃない、安心のサポート
価格を抑制し、間取りの検討から入居までの期間を短縮する間取り提案サービスは、建築費が高騰する環境下で満足度をより高めていただけるはず。価格や仕様を明快にして選びやすくする一方で、営業担当者がご家族の思いに耳を傾けて提案するスタイルは従来通りです。大和ハウスが誇る数の力と質の力を活用して、失敗のない住まいづくりを実現してください。
【大和ハウスのスマートデザイン】HP
https://www.daiwahouse.co.jp/jutaku/feature/indexlife/smartdesign.html
【大和ハウスのスマートセレクション】HP
https://www.daiwahouse.co.jp/jutaku/feature/indexlife/smartselection.html
【大和ハウスの全国の展示場検索】HP